Living & Family Room Makeover

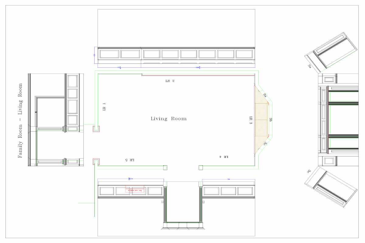
This is a great project, my client would like to make over 2 adjoining rooms, a living and family room. The house was built in the 1970’s and when I first saw it, still had the original mouldings from the builder…..very small, uninteresting and minimal.
Nonetheless, the house has some nice features to build on. It has large rooms, a fireplace, a large bay window, and a wide opening between the two rooms.

Before & After Photos

Wainscot and Mouldings

Share

You have not viewed any product yet.

Shop Pages

Posts

How the Best Baseboard Heater Covers Are Made

Putting a Window Seat Over a Baseboard Heater

The Last Christmas Trees of 2021

Christmas Trees 2020 – A Limited Edition

Baseboard Heater Covers – Made Any Way You Need Them

How to Assemble and Install Your Wood Heater Cover

Changing the Color Of Wood From Red to Brown

Custom Baseboard Heater Covers Are Here!

Window Seats

Rustic Painted Pine – Making Old Barn Wood From Scratch